アスティルホテル新大阪 レストラン『room CAFE』
アスティルホテル新大阪 レストラン『room CAFE』





9枚

9枚

9枚

9枚

9枚

9枚

9枚

9枚

9枚

9枚
所在地
大阪府大阪市 淀川区西三国3-3-7 アスティルホテル新大阪
最寄駅
◆阪急三国駅から 徒歩約1分です ◆JR大阪駅から JR大阪駅・・・徒歩5分・・・阪急梅田駅 阪急梅田駅 ━(阪急宝塚本線)
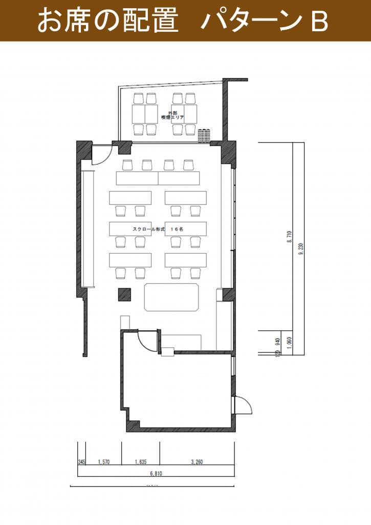
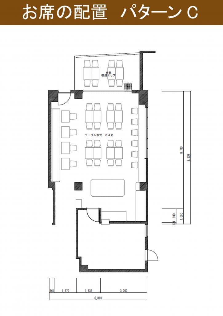
定員人数
形式ばった会議室も良いですが、堅苦しくならずリラックスしながら会議をしたいと思う方におススメ!!
当ホテルの朝食営業時間以外の時間をレンタルスペースとしてご利用して頂けますので、オシャレで落ち着きのある空間で、会議以外でも、お茶会、ママ友会等にご利用下さいませ!!
尚、宴会なども承りますので別途ご相談下さい。
ルームタイプ貸切の部屋・家(一般的なレンタルスペース)
面積40㎡
会場タイプ
特徴
おすすめの用途
設備・サービス
アクセス
大阪府大阪市 淀川区西三国3-3-7 アスティルホテル新大阪
読み込み中...
交通手段
入退室方法
入退室方法は、以下の箇所でご確認ください。
1. 予約確定時に送信されるメール
2. マイページ内 [予約・予約リクエスト] > [予約詳細]
お支払い方法
各種決済方法に対応しております。
クレジットカード
カード可(VISA、Master、AMEX、JCB、Diners)
このレンタルスペースの利用規約等
スペース掲載者 : 株式会社メビウス
この施設のスペースをすべて見る誰でも最大
PayPayポイント最大
10%
もらえる誰でも最大
PayPayポイント最大
10%
もらえる